Existing home Information中古物件情報
宮若市鶴田
- 価格
- 2,950万円 【値下げ中】
- 所在地
- 宮若市鶴田
- 築年月
- 2018年(H30年)6月(築6年8ヶ月)
- 間取り
- 5LDK
- 土地面積
- 実測286.89㎡/約86.78坪
- 建物面積
- 186.1㎡(1階:133.11㎡ 2階:52.99㎡)/約56.29坪
- 建物構造
- 木造
- 建物工法
- ツーバイフォー工法
- 駐車場
- 有 3台分以上
- 用途地域
- 無指定
- 学校校区
- 宮若市立光陵小学校 距離300m
宮若市立宮若東中学校 距離4200m
- 設備
- トイレ2箇所・食器洗浄乾燥機・24時間換気システム・オール電化・高気密高断熱住宅
- 備考
- ビルトインガレージ2台分
飯塚市津原
- 価格
- 690万円
- 所在地
- 飯塚市津原609-7

- 築年月
- 1977年(S52年)9月 (築47年5ヶ月)
- 間取り
- 4LDK
- 土地面積
- 公簿440.84㎡ / 約133.35坪
- 建物面積
- 139.93㎡(1階:114.66㎡ 2階:25.27㎡ ) /約42.32坪
- 建物構造
- 木造
- 建物工法
- 木造軸組工法
- 駐車場
- 有
- 用途地域
- 無指定
- 都市計画
- 非線引区域
- 学校校区
- 飯塚市立高田小学校 距離900m
飯塚市立穂波西中学校 距離1800m
- 設備
- プロパンガス・電気・汲取・照明器具付き・庭・物置・浴室に窓・全居室収納・玄関収納・シューズボックス・押入れ・全室照明付・キッチンに窓・3口コンロ以上・倉庫
- 備考
- 閑静住宅街
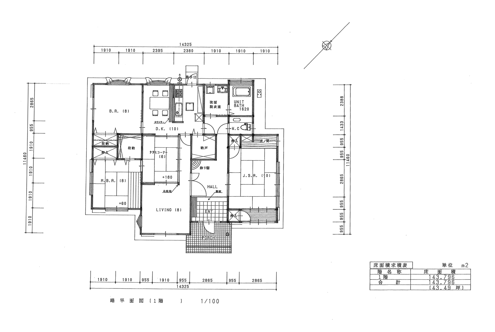
嘉穂郡桂川町
- 価格
- 1,360万円
- 所在地
- 嘉穂郡桂川町大字土居1632

- 築年月
- 1992年(H4年)11月
- 階建
- 地上2階建
- 間取り
- 4LDK
- 間取り内訳
- LDK20/和8/洋8/洋6/洋6
- 土地面積
- 公簿257.37㎡/約77.85坪
- 建物面積
- 162.05㎡(1階 94.56㎡ 2階 67.49㎡) 約49.02坪
- 建物構造
- 木造
- 建物工法
- ツーバイフォー
- 駐車場
- 有 3台以上
自走(平置きも含む)/屋根あり
- 用途地域
- 無指定
- 都市計画
- 非線引き区域
- 学校校区
- 桂川町立桂川小学校 距離1243m
桂川町立桂川中学校 距離1466m
- 設備
- トイレ2か所、システムキッチン、食器洗浄乾燥機、IHクッキングヒーター、シャンプードレッサー、TVモニタ付きインターホン、高気密高断熱住宅、カーテン付、吹き抜け、キッチンに窓
- 備考
- ウォークインクローゼット、ビルトインガレージあり